Eton
Click to Enlarge

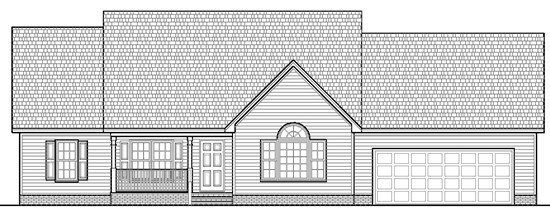
040411 - Eton

1,493 square feet
Width - 68' 0"
Depth - 45' 10"

3 bedrooms, 2 baths
Master Suite with vanity, tub, walk-in shower and walk-in closet
Kitchen with breakfast nook/Dining area and pantry 
Family room
Covered Front Porch
Deck
2 car garage

There are no items related to this item.

HomePlansCafe
Carl Welch
President/CEO
1732 Deacon Falls Way
Wendell, NC 27591
P: 919-783-8626
F: 866-908-4307
carl@midtowndesigns.com

AIBD     pinterestlogo     linked-in-logo    facebooklogo     houzzlogo     instagramlogo      

 

 

Site Map

Web site design and development by Americaneagle.com

©2026 Midtown Designs. All rights reserved.

close (X)